Trilocale in vendita

Roma, Via Paestum - Quadraro Nuovo
€ 270.000
3 locali 3 locali
75 Mq 75 Mq
1 bagno 1 bagno

Trilocale in vendita

Roma, Via Paestum - Quadraro Nuovo

Descrizione annuncio

A meno di 5 minuti a piedi da Via Lemonia con il suo rinomato Parco degli Acquedotti e situato tra le fermate di Numidio quadrato e Lucio sestio, proponiamo la vendita di un appartamento trilocale precisamente ubicato in Via Paestum, all'interno di un piccolo stabile di soli 2 piani.

Il fabbricato, 2 anni fa, è stato oggetto di rifacimento esterno con il bonus 110.

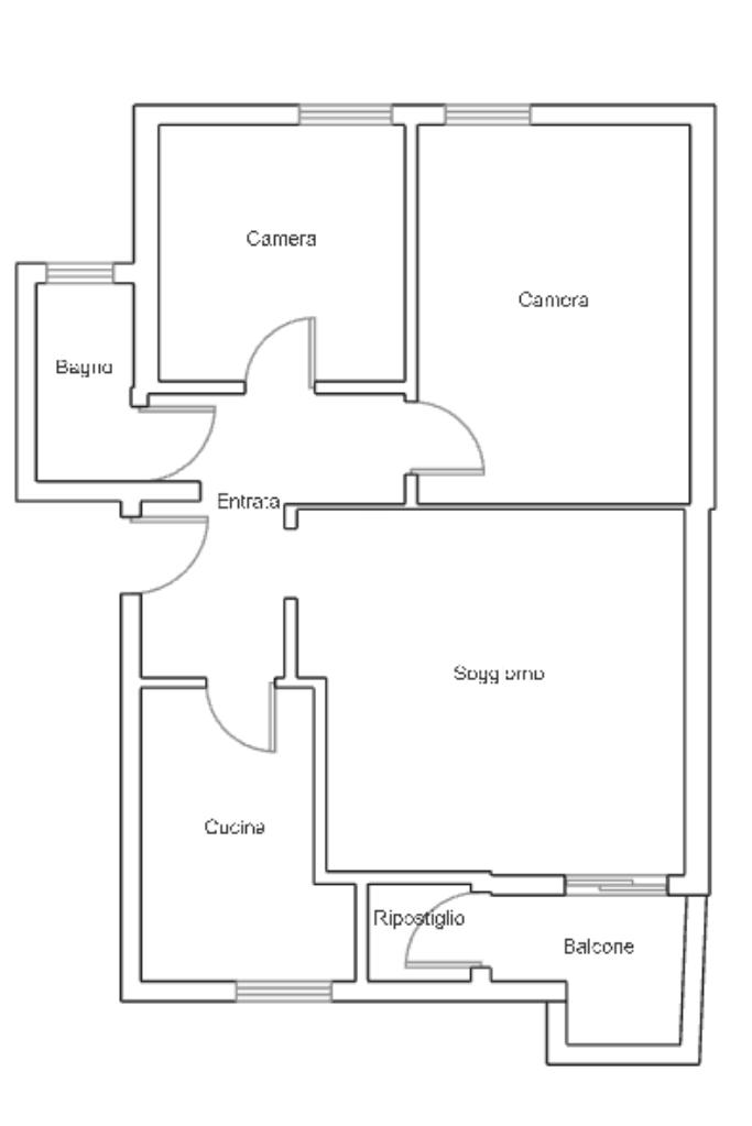
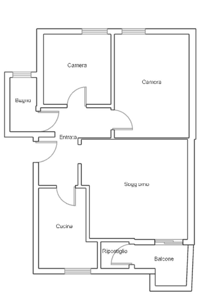
L'immobile si trova al secondo ed ultimo piano del palazzo ed attualmente si compone di: Ingresso, Ampio Soggiorno, Cucina, Camera matrimoniale, Cameretta, Bagno, Ripostiglio e Balcone. Completa la proprietà una cantina di 8 mq, sita al piano scantinato ed inoltre gode dell'uso esclusivo di un posto auto condominiale assegnato.

Internamente si presenta nello stato originario, ad eccezione del bagno, che è stato rifatto negli ultimi anni, degli infissi in pvc a taglio termico e della caldaia che sono stati sostituiti di recente.

Grazie alla presenza di semplici tramezzature poste a divisione degli ambienti, è possibile modificare facilmente la disposizione interna, a seconda delle esigenze personali.

Il contesto è molto tranquillo e immerso nel verde, siamo nel cuore di un quartiere vivace e ricco di servizi come quello del Tuscolano, ma l'abitazione gode di tanta calma e silenzio.

L'esposizione è doppia, all'interno dei cortili condominiali, orientato a nord/est da un lato e sud/ovest dall'altro, regalando un'ottima luminosità lungo tutto l'arco della giornata ed una buona ventilazione.

Mostra tutto

Nelle vicinanze

Trasporto pubblico Trasporto pubblico
Lucio Sestio
Lucio Sestio
570 m
Numidio Quadrato
Numidio Quadrato
580 m
Centocelle
Centocelle
2,2 Km
Balzani
Balzani
2,2 Km
Balzani
Balzani
2,2 Km
Ricariche auto elettriche Ricariche auto elettriche
Eneldrive Cinecittà
1,5 Km
Eneldrive Autorimessa Primula
2,9 Km
Roma Appia | EnelX
2,9 Km
Scuole Scuole
Scuola Pubblica Materna Salvo D'acquisto
200 m
Scuola Elementare Statale 65° circolo Aldo Fabrizi
460 m
Scuole
560 m
Istituti Paritari "Enrico De Nicola"
690 m
Scuola Elementare Statale G. Puccini
770 m
Farmacia Farmacia
Farmacia Tuscolana
230 m
Farmacia
550 m
Parafarmacia la Capitale
760 m
Pulker Farma
820 m
Farmacia De Cesaris
880 m
Ospedali Ospedali
NCL
1,4 Km
Farmacia Berna
1,6 Km
Istituto delle Figlie di San Camillo - Ospedale M. G. Vannini
2,8 Km
Pronto Soccorso Ospedale "Madre G. Vannini"
2,8 Km
Casa di riposo Bruno Buozzi
2,9 Km
Supermercati Supermercati
Iper Dem
550 m
iN's mercato
610 m
Simply Market
610 m
Supermercati Metà
690 m
Tuodì
700 m
Negozi Negozi
O-Rama
480 m
Shake
530 m
Nuna Lie
540 m
Upper
550 m
Sognando
550 m
Bar Bar
Caffé Spartaco
240 m
Bar
380 m
il Mago del cappuccino
460 m
Fornocaffè
510 m
Brutium bar
520 m
Ristoranti Ristoranti
Pizzeria Deus Pinsa
90 m
El tio Pepe
260 m
La Locanda dei Girasoli
320 m
Accasadì
450 m
Mare Blu
490 m
Mostra tutto

Caratteristiche

Rif.:
61145225
Piano:
2 di 2 (ultimo Piano)
Posti auto:
1
Balconi:
1
Camere da letto:
2
Arredamento:
Assente
Mostra tutto
Prezzo Prezzo
€ 270.000
Rata mutuo Rata mutuo
€ 1.274 / mese
Proponi il tuo prezzoProponi il tuo prezzo

Classe Energetica

G
G
G
G
G
G
G
G
G
EP invernale del fabbricato:
EP estiva del fabbricato:
Anno di costruzione:
1955
Riscaldamento:
Autonomo
Tipo impianto:
A radiatori
Tipo alimentazione:
Altro

Ti interessa visionare l'immobile?

Fissa un appuntamento  Fissa un appuntamento

Richiedi informazioni

Clicca su Leggi per aprire l'informativa
* Questi campi sono obbligatori

Calcola il tuo mutuo

Semplice e senza impegno
Anticipo

( % )
Mutuo

( % )

pochi semplici passi

inserisci i tuoi dati
Questionario completato
Grazie per aver richiesto un appuntamento senza impegno con un nostro Consulente del Credito e Assicurativo.

Hai inserito correttamente tutti i dati necessari e a breve riceverai una e-mail con un link da convalidare per inviare i tuoi dati.
Affiliato
Mediazioni Tuscolana Srl
Via Tuscolana, 934/A 00174 Roma (RM)
Via Tuscolana, 934/A 00174 Roma (RM)
Zona: TUSCOLANO-PORTA FURBA-QUADRARO-LUCIO SESTIO
Mostra su mappa
Affiliato
Mediazioni Tuscolana Srl
Via Tuscolana, 934/A 00174 Roma (RM)

2025 Tecnocasa Franchising S.p.A. - P. IVA 08365160152 - Via Monte Bianco 60/A 20089 Rozzano (MI). Ogni agenzia ha un proprio titolare ed è autonoma. Privacy policy | Policy utilizzo | Cookie policy