Trilocale in vendita

Roma, Via dell'Acqua Felice - Quadraro Nuovo
€ 225.000
3 locali 3 locali
97 Mq 97 Mq
1 bagno 1 bagno

Trilocale in vendita

Roma, Via dell'Acqua Felice - Quadraro Nuovo

Descrizione annuncio

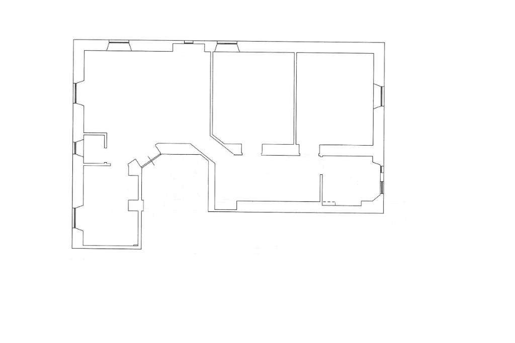
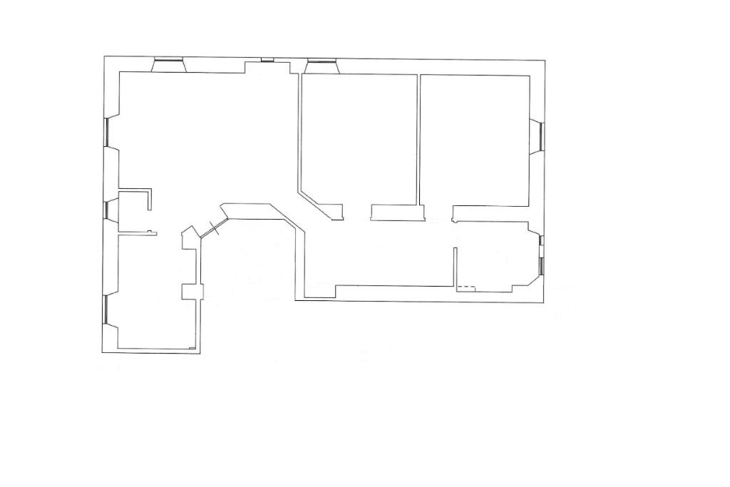
A due passi dal parco di Tor Fiscale, e, più precisamente, in Via dell'Acqua Felice, proponiamo la vendita di un appartamento trilocale, sito al primo ed ultimo piano di un piccolo stabile d'epoca degli anni '30.

L'immobile sviluppa una metratura interna di circa 90 mq e si compone attualmente di: Ampio ingresso, Salone, Cucina abitabile, 2 Camere matrimoniali e Bagno.

Lo stato interno è originale e pertanto è possibile modificarlo e caratterizzarlo in base alle proprie esigenze, vantando ambienti confortevoli e generosi.

Il fabbricato è circondato da un ampio giardino condominiale dove è possibile parcheggiare l'automobile, godendo di un posto auto coperto assegnato.

La proprietà gode di una tripla esposizione, prevalentemente orientato ad est/ovest, che garantisce un'ottima luminosità, vanta affacci aperti ed una gradevole vista sul verde.

Mostra tutto

Nelle vicinanze

Trasporto pubblico Trasporto pubblico
Porta Furba/Quadraro
Porta Furba/Quadraro
350 m
Numidio Quadrato
Numidio Quadrato
710 m
Balzani
Balzani
1,7 Km
Berardi
Berardi
1,7 Km
Berardi
Berardi
1,7 Km
Ricariche auto elettriche Ricariche auto elettriche
Roma Appia | EnelX
2,0 Km
Eneldrive Cinecittà
2,3 Km
Eneldrive Autorimessa Primula
2,5 Km
Roma Ponte Lungo | EnelX
2,7 Km
Scuole Scuole
Scuole
440 m
Istituti Paritari "Enrico De Nicola"
810 m
Scuola Elementare Statale G. Puccini
940 m
Istituto di Istruzione Superiore "Leopoldo Pirelli"
1,0 Km
Scuola Pubblica Materna Salvo D'acquisto
1,1 Km
Farmacia Farmacia
Farmacia
340 m
Parafarmacia la Capitale
440 m
Pulker Farma
510 m
Farmacia Tuscolana
820 m
Velodromo
1,2 Km
Ospedali Ospedali
NCL
470 m
Istituto delle Figlie di San Camillo - Ospedale M. G. Vannini
2,0 Km
A.S.L. Roma C
2,0 Km
Farmacia Berna
2,1 Km
Pronto Soccorso Ospedale "Madre G. Vannini"
2,1 Km
Supermercati Supermercati
Conad
240 m
Supermercati Gros Sacoph
360 m
Tuodì
600 m
Supermercati Metà
760 m
Simply Market
800 m
Negozi Negozi
Negozi
270 m
Elsa Spose
300 m
Stop Gap
360 m
Caos 28
390 m
Raha Alimentari
570 m
Bar Bar
Willy's
300 m
Il bosco degli elfi
380 m
Bar Tabacchi Doppia Sfida
580 m
Caffetteria Romana
640 m
Bar
690 m
Ristoranti Ristoranti
Trattoria La Piazzetta
250 m
Osteria der Tempo perso
260 m
Crudo, cotto e ... mangiato
290 m
Mattarello Tuscolana
300 m
Il Giardino Segreto
310 m
Mostra tutto

Caratteristiche

Rif.:
61144922
Piano:
1 di 1 (ultimo Piano)
Posti auto:
1
Camere da letto:
2
Arredamento:
Assente
Condizionamento:
Assente
Mostra tutto
Prezzo Prezzo
€ 225.000
Rata mutuo Rata mutuo
€ 1.064 / mese
Proponi il tuo prezzoProponi il tuo prezzo

Classe Energetica

G
G
G
G
G
G
G
G
G
EP invernale del fabbricato:
EP estiva del fabbricato:
Anno di costruzione:
1939
Riscaldamento:
Autonomo
Tipo impianto:
A radiatori
Tipo alimentazione:
Altro

Ti interessa visionare l'immobile?

Fissa un appuntamento  Fissa un appuntamento

Richiedi informazioni

Clicca su Leggi per aprire l'informativa
* Questi campi sono obbligatori

Calcola il tuo mutuo

Semplice e senza impegno
Anticipo

( % )
Mutuo

( % )

pochi semplici passi

inserisci i tuoi dati
Questionario completato
Grazie per aver richiesto un appuntamento senza impegno con un nostro Consulente del Credito e Assicurativo.

Hai inserito correttamente tutti i dati necessari e a breve riceverai una e-mail con un link da convalidare per inviare i tuoi dati.
Affiliato
Mediazioni Tuscolana Srl
Via Tuscolana, 934/A 00174 Roma (RM)
Via Tuscolana, 934/A 00174 Roma (RM)
Zona: TUSCOLANO-PORTA FURBA-QUADRARO-LUCIO SESTIO
Mostra su mappa
Affiliato
Mediazioni Tuscolana Srl
Via Tuscolana, 934/A 00174 Roma (RM)

2026 Tecnocasa Franchising S.p.A. - P. IVA 08365160152 - Via Monte Bianco 60/A 20089 Rozzano (MI). Ogni agenzia ha un proprio titolare ed è autonoma. Privacy policy | Policy utilizzo | Cookie policy